LGCE (SDLG) LG969 (2009.02)
1 154 000 товаров
Погрузчик фронтальный
Модификация: ДВС 4110000565 SDEC C6121ZG61B (CB0046) ГТР 4110000042002 (ZF 4168034034) КПП 4110000042 (ZF 4WG200) Мост перед. 4110000047 (ZF AP-411/HK) Мост задн. 4110000045 (ZF AP-409/DK) Компл. E6911223A36
-
Система дизельного двигателя
-
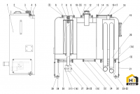
Топливный бак в сборе
-
Радиатор в сборе
-
Система управления регулятора оборотов
-
Двигатель дизельный
-
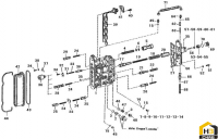
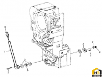
Коробка передач в сборе
-
Конвертер (гидротрансформатор) (4644 130)
-
Гидротрансформатор 4166 034
-
Корпус коробки передач (внутренняя часть) (4644 102)
-
Крепёжные части коробки передач (4644 101)
-
Вал промежуточный (4644 108)
-
Муфта сцепления KV+K1 4644 151
-
Муфта сцепления KR+K2 4644 152
-
Муфта сцепления 4644 153
-
Вал выходной (4644 103)
-
Тормоз стояночный 4644 109
-
Колодка тормозная 0501 003
-
Вал отбора мощности 4644 154
-
Механизм отбора мощности 4644 155
-
Механизм переключения передач 4644 106 (часть I)
-
Механизм переключения передач 4644 159 (часть II)
-
Регулятор давления 4644 120
-
Фильтр гидравлический 4644 138
-
Заглушка насоса аварийного рулевого управления 644 137
-
Датчик индуктивный 4644 125
-
Горловина заливная 4644 131
-
Трубки масляные КПП 644 121
-
Комплектующие (рычаг управления КПП 4644 199)
-
Мост передний в сборе
-
Мост задний в сборе
-
Вал приводной в сборе
-
Диск колёсный с шиной в сборе
-
Шина GB2980-23.5-25 (520101)
-
Корпус моста и ось 4474.101.480
-
Кронштейн крепления моста и ось 4474.101.481 (AP-411/HK)
-
Детали крепления моста 4474.101.100
-
Детали крепления моста 4474.101.101 AP-409/DK
-
Ступица 4474.102.276
-
Ступица 4474.102.285
-
Детали крепёжные ступицы 4474.102.459
-
Корпус привода оси 4460.115.054 (часть I)
-
Корпус привода оси 4460.165.067 (часть II)
-
Фланец входной 446011500402 LK 187/4 180 D/LZ=8/D=12,1
-
Фланец входной 4460.165.612
-
Пара гипоидная 4460.215.338 I=3,70/RE/FLSP=.21-.36 AE HK
-
Пара гипоидная 4460.265.368 I=3,70 (TE.LI)
-
Дифференциал 4061.016.070
-
Дифференциал 4061.010.141
-
Привод гидравлический в сборе
-
Насос рабочий в сборе
-
Цилиндр подъёма стрелы
-
Цилиндр наклона в сборе
-
Маслобак в сборе
-
Цилиндр наклона (371368)
-
Цилиндр подъёма (371368)
-
Оборудование рабочее (пальцы, втулки)
-
Ковш в сборе
-
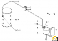
Насос рулевого управления
-
Механизм управления в сборе
-
Цилиндр рулевого управления в сборе
-
Цилиндр рулевого управления (371368)
-
Система тормозная
-
Воздухосборник
-
Главный тормозной цилиндр (340201)
-
Система стояночного тормоза
-
Рама передняя
-
Соединение шарнирное в сборе
-
Кронштейн фар и брызговик передний
-
Рама задняя
-
Противовес
-
Кабина в сборе
-
Комплектующие кабины
-
Панель рабочая
-
Сиденье в сборе
-
Чехол-накладка переключателя скоростей
-
Капот в сборе
-
Лестница левая (для доступа в кабину оператора)
-
Лестница правая (для доступа в кабину оператора)
-
Лампа задняя (указатель поворота)
-
Логотипы и опознавательные знаки
-
Ящик аккумуляторной батареи
-
Ящик для инструментов
-
Кондиционер
-
Электросистема
-
Панель в сборе
-
Колонка рулевая