LGCE (SDLG) LG938 (2010.12)
1 154 000 товаров
Погрузчик фронтальный
Модификация: ДВС 4110000555 Cummins 6BT5.9-C130 (SO11686) ГТР 4110000076388 (ZF 4166031804)КПП 4110000076 (YD13) Мост перед. 2050900049 Мост задн. 2050900051 Компл. E3805215A3908
-
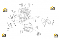
Дизельный двигатель в сборе
-
Топливный бак в сборе
-
Радиатор в сборе с патрубками
-
Система управления регулятора оборотов
-
Радиатор в сборе с модулем охлаждения
-
Трансмиссия в сборе
-
Крепежные средства и заглушки коробки передач
-
Корпус коробки передач (внутренняя часть)
-
Вал выходной коробки передач
-
Прокладки регулирующего клапана
-
Указатель числа оборотов (тахометр)
-
Шестерня коробки передач
-
Тормоз стояночный
-
Комплектующие клапана давления
-
Патрубок масляный всасывающий КПП (часть I)
-
Конвертер (гидротрансформатор)
-
Патрубок масляный всасывающий КПП (часть II)
-
Фильтр масляный
-
Узел муфты сцепления (часть I)
-
Узел муфты сцепления (часть II)
-
Узел муфты сцепления (часть III)
-
Вал отбора мощности 4644 311 011 (часть I)
-
Вал отбора мощности (часть II)
-
Распределитель (регулирующий клапан) 4642 306 152
-
Передний главный привод в сборе
-
Бортовая передача в сборе
-
Задний главный привод в сборе
-
Тормозной суппорт в сборе (371328)
-
Система ведущих мостов
-
Шина GB2980-23.5-25 (520101)
-
Гидравлическая система управления
-
Рабочий насос в сборе
-
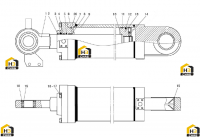
Подъёмный цилиндр в сборе
-
Цилиндр наклона в сборе
-
Гидравлический маслобак в сборе
-
Цилиндр разгрузки ковша (371368)
-
Цилиндр подъема (371368)
-
Блок клапанов управления (331001)
-
Пальцы, втулки подъемной рамы
-
Насос рулевого управления в сборе
-
Блок рулевого управления
-
Узел рулевого цилиндра
-
Цилиндр рулевого управления (371368)
-
Рабочий тормоз в сборе
-
Воздухосборник
-
Усилитель тормозной системы (340201)
-
Система стояночного тормоза
-
Рама передняя
-
Кронштейн фар и передние брызговики
-
Рама задняя (крепежные средства)
-
Кабина в сборе
-
Комплектующие кабины
-
Нижняя рама кабины
-
Сиденье в сборе
-
Блок управления в сборе
-
Капот двигателя
-
Лестница в сборе (левая) (подножка)
-
Лестница в сборе (правая) (подножка)
-
Противовес
-
Ярлык, лого, опознавательные знаки
-
Ящик аккумуляторной батареи в сборе
-
Лестница в сборе
-
Система кондиционирования воздуха
-
Электросистема
-
Панель приборов
-
Рулевая колонка в сборе